
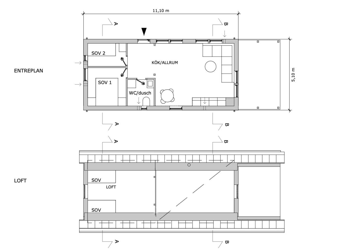
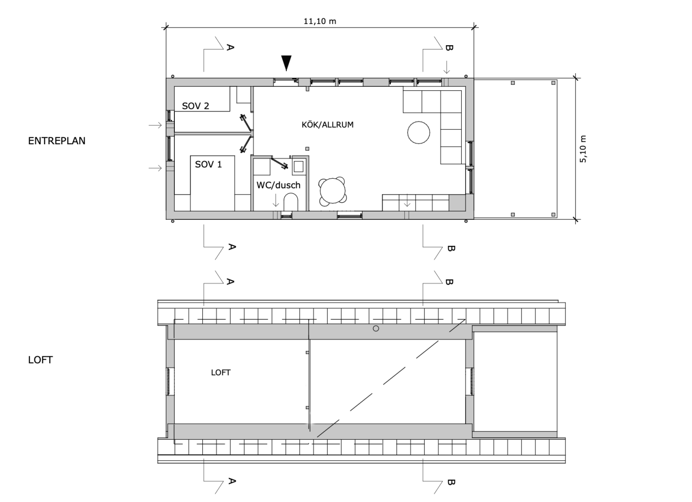
Tofta Lofthus är nybyggt och färdigställdes 2025. Huset är fullt utrustat med kyl, frys, diskmaskin, tvättmaskin, luftvärmepump samt utekök med kyl, spisplattor, grill och rinnande vatten. Tofta Lofthus är ca 55 kvm stort plus ett större loft (loftet har bostadsyta 12,7 kvm) och en altan under tak på 15 kvm. Huset har tre sovrum, loftet inräknat. Master bedroom har en dubbelsäng på 160 cm, lilla sovrummet har en 90 cm tvåvåningssäng och loftet har två resårbottnar på 90 cm. Till loftet går en loftstege. Loftet har ett räcke och öppningen går att stänga till med ett rep med karbinhake. Observera att loftet används på egen risk. Ett mindre matbord finns i huset och altanen under tak inbjuder till måltider för 4-6 personer. På altanen finns ett utekök och det finns tillgång till gasolgrill.















Tomten
Huset har skogstomt med mysiga gångar, utemöbler och en hängmatta. På altanen finns uteköket (eller guteköket) och större matplats med morgon- och kvällssol. Parkering finns på tomten. Återvinningskärl på tomten.




planlösning

Tofta strand
Till en av Gotlands absolut vackraste och längsta sandstränder, Tofta strand, är det ca 500 meter. På Tofta strand finns – förutom två kilometer sandstrand – restauranger, matbutik, pool, försäljningsvagnar, glassbarer, camping, utegym, padel, kitesurfing och beachvolleyboll.





Från Tofta Lofthus är det ca 18 km till Visby, ca 9 km till Kronholmens golfbana och ca 17 km till Klintehamn. Det är cykelväg hela vägen Visby – Tofta – Klintehamn. Buss 10 går samma sträcka och busshållsplats finns 400 m från huset.
Bo i Tofta Lofthus
Tofta Lofthus och dess omgivningar inbjuder till strandliv och socialt umgänge. Det finns ej wifi eller tv. Minst två personer i sällskapet bör vara över 25 år. Inga husdjur kan följa med pga allergi. Helt rökfritt.



veckopriser 2026
Parkering, el och sophämtning ingår. Endast uthyrning veckovis lördag till lördag. Professionell städning (1500 kr) tillkommer priset och är ej valbart. Förskottsbetalning. Deposition på 2000 kr lämnas vid betalning och återbetalas efter veckans slut*.
v 21. 9000 kr + 1500 kr för städning (10500 kr)
v 22. 9000 kr + 1500 kr för städning (10500 kr)
v 23. 9000 kr + 1500 kr för städning (10500 kr)
v 24. 11000 kr + 1500 kr för städning (12500 kr)
v 25. 11000 kr + 1500 kr för städning (12500 kr)
v 25. 11000 kr + 1500 kr för städning (12500 kr)
v 26. 13500 kr + 1500 kr för städning (15000 kr)
v 27. 13500 kr + 1500 kr för städning (15000 kr)
v 28. Bokat
v 29. Bokat
v 30. Bokat
v 31. Bokat
v 32. Bokat
v 33. 13500 kr + 1500 kr för städning (15000 kr)
v 34. Bokat
v 35. 11000 kr + 1500 kr för städning (12500 kr)
v 26. 11000 kr + 1500 kr för städning (12500 kr)
*Depositionen är en säkerhetssumma hyresgästen betalar till hyresvärden före tillträde, avsedd att täcka eventuella skador. Vid skada åsamkad av hyresgästen och som behöver åtgärdas av hyresvärden används depositionen till detta och återbetalas ej.
kontakt
Vill ni veta mer eller göra en bokningsförfrågan? Kontakta oss!
